Landsbyen Lilliendal

Bolig- og erhvervsfælleskab i tomme landbrugsbygninger

Type: Transformation
År: 2024-
Sted: Lilliendal Gods



Projektets formål er at omdanne ubrugte landbrugsejendomme til bolig- og erhvervsfællesskaber med lavt klimaaftryk, hvor bolig, arbejde og natur går hånd i hånd. Projektet stræber efter at skabe meningsfulde fællesskaber, der øger livskvaliteten og fremmer vækst i landkommuner. Forprojektet er medfinansieret af den Europæiske Union og Statens kunstfond.

I Danmark findes der cirka 60 millioner kvadratmeter landbrugsbygninger, der i øjeblikket står tomme. Af disse vurderes omkring 30 millioner kvadratmeter at have bevaringsværdige kvaliteter, hvilket svarer til ca. 175.000 parcelhuse. Disse bygninger rummer ikke kun økonomisk og historisk værdi, men udgør også en betydningsfuld del af det danske kulturlandskab. Når landbrugsbygninger tømmes for funktion, skaber det udfordringer både for ejere og samfundet som helhed. Ejere oplever, at bygningerne ikke længere bidrager til driften og derfor forfalder. For samfundet udgør de tomme bygninger en uudnyttet ressource, som skæmmer landskabet. Mere alvorligt betyder tommelandbrugsbygninger et tab af liv på landet.

.

Med projektet Landsbyen Lilliendal ønsker vi at bane vejen for en revitalisering af landdistrikterne. Vores mål er at demonstrere, at det gode liv of fælleskab, både i forhold til arbejde og familieliv, kan blomstre i tidligere tomme landbrugsbygninger. Vi vil vise vejen til en bæredygtig fremtid, hvor disse bygninger forvandles til levende rum, der fremmer trivsel, samarbejde og en stærk fællesskabsånd.

Pilotprojektet skal inspirere og kvalificere kommuner, lodsejere, bygherrer og investorer i deres arbejde med udvikling af tomme landbrugsbygninger til boliger og erhverv. Som en del af projektet udarbejdes en ny lokalplan i samarbejde med Vordingborg Kommune, som skal være vejledende for fremtidig omdannelse af lignende landbrugsbygninger lokalt og regionalt. Projektet er udført i samarbejde og er medfinansieret af LAG-Sjællandsyd.

Landsbyen Lilliendal er et ambitiøst projekt, beliggende på det smukke Gods Lilliendal på Sydsjælland. Her skal funktionstomme landbrugsbygninger, som tidligere har været mejeri, smedje, maskinbygninger og magasin, omdannes til et bolig- og erhvervsfællesskab. Projektet er inspireret af Oremandsgaard Gods, som er nabogodset til Lilliendal. Oremandsgaard er gået fra at have svært ved at tiltrække beboere til at have lukket venteliste takke være ejer August Hage. August har skabt et levende fælleskab ved at målrette sin udlejning og omdannjelse af eksisterende tomme bygninger til boliger med mulighed for at etablere erhverv. Visionen er at skabe et attraktivt bolig- og erhvervsmiljø for kreative udøvere og deres familier, der ønsker et alternativ til storbylivet. Her skal beboerne bo side om side med deres arbejdsplads/værksted, hvor børn og voksne har frirum til leg og natur.

Beboerne vil dele en stor køkkenhave og et væksthus, samtidig med at de har mulighed for at nyde privatlivets fred i deres egne haver og boliger. Projektet indebærer at omdanne nuværende tomme landbrugsbygninger, som tidligere har været mejeri, smedje, lade og magasin, til en kreativ landsby. Transformationen skal gennemføres i en sammenhængende proces for at sikre et arkitektonisk gennemført og bæredygtigt byggeri, skabt i tæt samarbejde med landsbyens kommende beboere.


Udarbejdet i samarbejde med følgegruppe fra Oremandsgaard bolig- og erhvervsfælleskab

Vores vision for boligfællesskabet er at skabe et tæt sammenhængende fællesskab, hvor det sociale bånd er centralt. Vi stræber efter at tiltrække og fastholde mennesker, der ønsker at være en del af et aktivt og engageret fællesskab. Ved at skabe et miljø, hvor beboerne støtter hinanden og samarbejder, vil vi fremme en selvforstærkende proces af tiltrækning og stabilitet.

Mål & vision
Landsbyen Lilliendal

I stedet for at følge en rigid masterplan, vil vi lade udviklingen ske organisk gennem knopskydning. Dette vil tillade en dynamisk tilpasning til beboernes behov og muligheder, hvilket vil bidrage til at skabe et levende og tilpasningsdygtigt fællesskab.

Vores vision for boligfællesskabet er at kombinere bolig og erhverv for at skabe en symbiose mellem arbejde og hjemmeliv. Ved at tilbyde erhvervslejemål i de tilgængelige bygninger vil vi styrke fællesskabet yderligere. Arbejdspladser på området vil ikke kun skabe økonomisk stabilitet, men også sikre, at der er liv og aktivitet hele dagen. Dette vil styrke de sociale bånd blandt beboerne og forankre dem til stedet.

Facader: Eksisterende forhold

Stueplan: Eksisterende forhold

Lilliendal Gods

Lilliendal
Eksisterende forhold

Projektgrund

Lilliendal Gods
Fremtidige forhold


Plan: Fremtidige forhold

Visualisering: Fælles gårdhave set mod syd-vest

Visualisering: Fælles gårdhave set mod vest

Visualisering: Fælles gårdhave set mod vest

Visualisering: Fælles gårdhave set mod vest

Boligeksempel

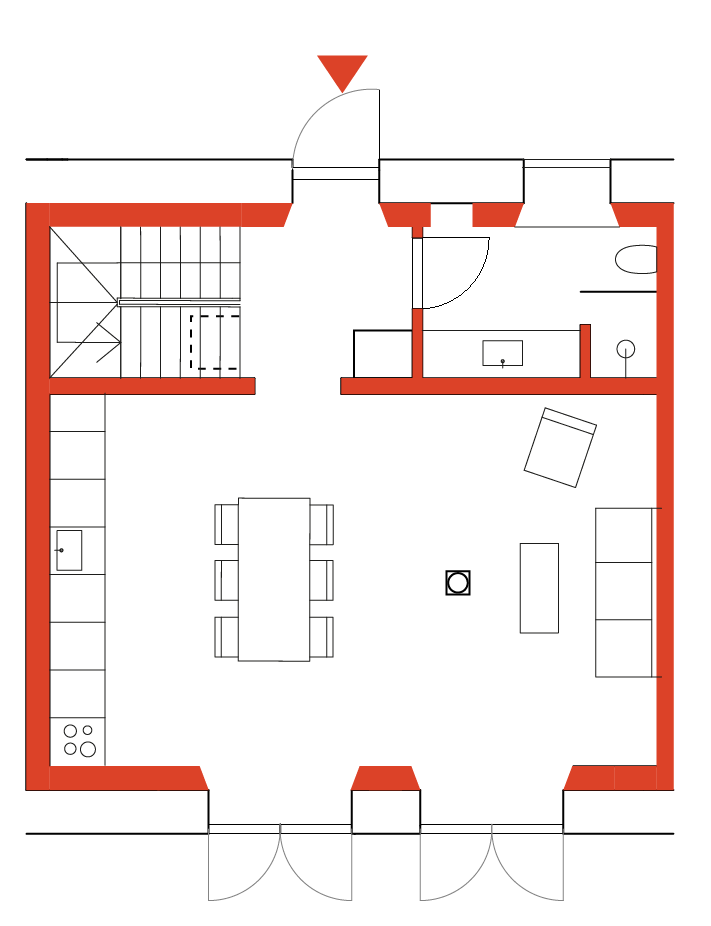
Boligenhed 5F
115 m2

Boligenhed 5F er et eksempel på en relativt lille bolig til en familie. Boligen er 115 m2 fordelt på to plan. Pladsen er kompakt, men godt udnyttet med entre med garderobe, bad og toilet og trappe til førstesalen. Stue og køkken er orienteret mod boligens vestvendte have med kig mod de åbne marker. Herfra er to stor døre som lukker haven ind i boligen og giver rummelighed til stuen og køkkenet. På første salen er et fælles børneværelse indbygget i alkover, som også ligger et trin nede på grund af loftets forskydning, som også er et synligt element i stuen. Derudover er der et forældre soveværelse.

Oversigt

Stueplan

1.sal

Visualisering: Bolighenhed 5G

Visualisering: Bolighenhed 5G

Eksempel på erhverv

Erhvervsenhed 5H
115 m2

Erhvervslejemålet er en tidligere maskinhal. Det dobbelthøje rum rummer et væld af muligheder for etablering af forskellige pladskrævende erhverv. I dette tilfælde er rummet indrettet med en simpel isoleret kasse, som rummer et kontor. Resten af lokalet kan fungere som udstillingsrum, atelier eller lignende og er kolde rum, som kan opvarmes efter behov.



Oversigt
Plan
Visualisering: Erhvervslejemål 5H
Visualisering: Erhvervslejemål 5H
Visualisering: Erhvervslejemål 5H

Eksempel på erhverv

Erhvervsenhed 5J
98 m2

Lokalet er en del af en tidligere smedje. Rummet har mange anvendelsesmuligheder. Her er det indrettet som kontor for en lille virksomhed med 3-6 ansatte. Rummet støder op til et fælles spiserum, som deles med de resterende erhvervsdrivende og beboere.



Oversigt
Plan: Erhvervslejemål 5J
Visualisering: Erhvervslejemål 5J